Eengezinswoning

Attenhovenstraat 43

3800 Sint-Truiden

€ 196.000
  • 3

  • 130 m²

  • 390 m²

RUIME WONING MET CENTRALE VERWARMING, VERNIEUWD DAK, 2/4 SLAAPKAMERS, GEÏNSTALLEERDE BADKAMER, KELDER, ZOLDER EN BIJBOUW GELEGEN TE VELM OP 3A 90CA

TROEVEN:

- tuin met mooi vrij uitzicht
- vernieuwd hoofddak met reeds een onderdak
- ruime bewoonbare oppervlakte door de bijbouw die er ook bijhoort aan de linkerzijde van de woning
- veel renovatiemogelijkheden --> bekijk de plannen van een voorontwerp hier onder DOWNLOADS
- 2 bestaande slaapkamers maar 4 slaapkamers mogelijk: één op de verdieping van de bijbouw en nog één op de zolder die al bereikbaar is via een vaste trap, en in combinatie met het vernieuwd dak ideaal is
- CV op mazout Buderus 1999
- ontkalker
- P- en G-score D maar alleen aan de straatzijde, rest van het perceel niets --> zie het overstromingsrapport bij de algemene info hier onderaan deze pagina onder DOWNLOADS
- EPC 755 kWh/m² - label F --> zie het attest onderaan deze pagina onder DOWNLOADS. Dit pand is onderworpen aan de renovatieverplichting van de Vlaamse Overheid voor residentiële gebouwen (behoudens bij sloop binnen 5 jaar na de aankoop). Consulteer voor meer informatie de website van het Vlaams Energie- en Klimaatagentschap via https://vlaanderen.be/een-huis-of-appartement-kopen/renovatieverplichting-voor-residentiele-gebouwen

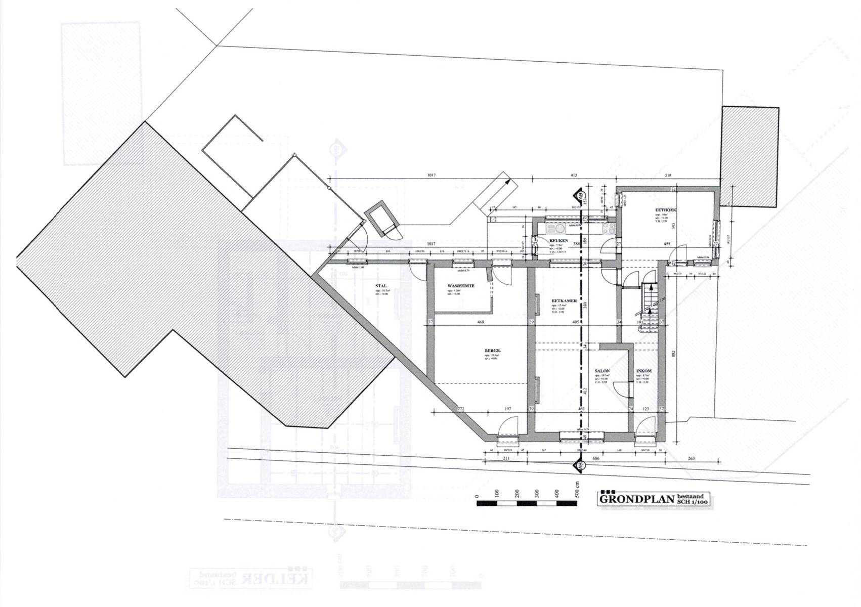
KELDERVERDIEPING -01:
- Gewelfde kelder
(48m²): 8.00x6.00m, hoogte 1.80m. Hier staat ook de in 1999 geplaatste Buderus CV-ketel op mazout. Tegelvloer.

GELIJKVLOERS (plafondhoogte 3.00m)
:
- Inkomhal (13m²): 7.50x1.75m met de trap naar de bovenverdieping. Tegelvloer.
- Leefruimte (33m²): bestaande uit de eetkamer (14m² - 4.00x3.65m) en de zitkamer (19m² - 4.60x4.15m). Tegelvloer.
- Familiekamer (16m²): 4.50x3.50m, voorzien van een buitendeur en schouw. Tegelvloer.
- Keuken (7m²): 3.85x1.90m, voorzien van een fornuis, dampkap en spoelbak. Zicht op en toegang tot de tuin. Tegelvloer.
- Bijbouw (32m²): ongeveer 8.00x4.00m, gelegen links van de woning en zowel bereikbaar via de straatzijde als de tuin. Hier bevindt zich momenteel ook de wasplaats van 6m². Tegelvloer.

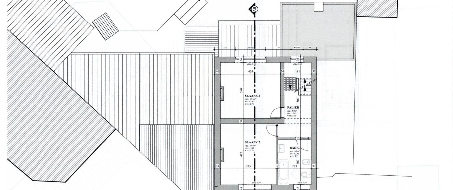
VERDIEPING +01 - houten tussenvloer:
- Nachthal/overloop
(5m²): 3.00x1.75m met de vaste trap naar de zolderverdieping. Linoleumvloer.
- Badkamer (6m²): 3.00x2.00m, uitgerust met een ligbad, toilet, bidet en lavabo. Ruimte voorzien van een raam en linoleumvloer.
- Slaapkamer 1
(16m²): 4.50x3.50m, voorzien van een radiator en linoleumvloer.
- Slaapkamer 2
(14m²): 4.00x3.50m voorzien van een radiator en linoleumvloer.
- Verdieping bijbouw: mogelijkheid om hier een extra slaapkamer te maken, of een home office.

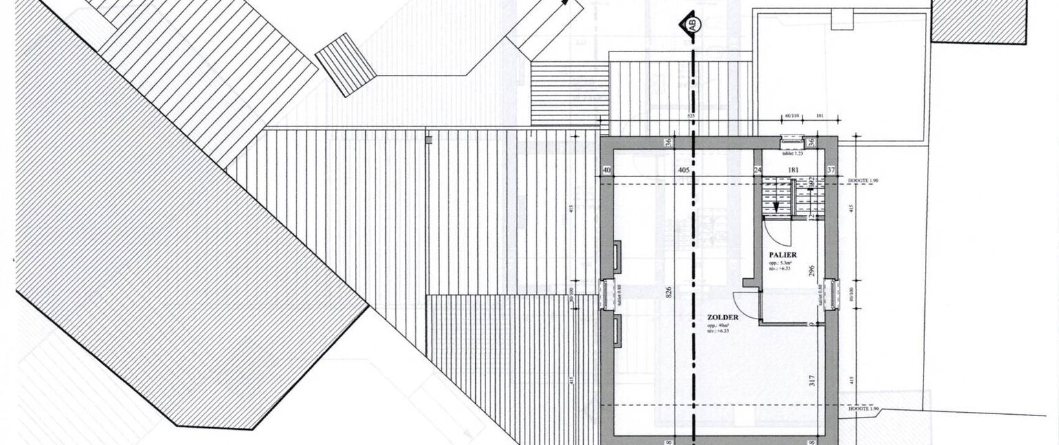
VERDIEPING +02 - bereikbaar via een vaste trap - houten tussenvloer:
- Volledige zolderverdieping
(48m²): 8.00x6.00m, voorzien van een vernieuwd dak met onderdak.

EXTERIEUR:

- Verschillende bergingen.

N3 vastgoed


Luikersteenweg 395, 3800 Sint-Truiden

T: +32 11 75 57 30


Contacteer ons voor meer info
  • Delen mag altijd:
  • Print

Meer in detail

Contacteer ons

Wenst u meer informatie over deze eigendom?

U moet een aanspreking selecteren.
U moet uw voornaam invullen.
U moet uw naam invullen.
U moet uw e-mailadres invullen.
U moet uw telefoon invullen.
U moet een vraag invullen.
U moet akkoord gaan met onze algemene voorwaarden.

vergelijkbare eigendommen