Gebouw voor gemengd gebruik

Steenweg 194

3870 Heers

€ 279.000
  • 235 m²

  • 418 m²

ZEER RUIME WONING MET APART BUREEL MET APARTE INGANG, 6 SLAAPKAMERS, CV MAZOUT, TUIN EN TERRAS GELEGEN IN HET CENTRUM VAN HEERS LANGS DE DRUKKE STEENWEG OP 4A 18CA

TROEVEN:
- het gaat hier oorspronkelijk om 2 woningen die zijn samengevoegd tot één woning
- door zijn ruime bewoonbare oppervlakte van maar liefst 235m² dus ook geschikt als kangoeroewoning, nieuw samengestelde gezinnen, vrij beroepers, .... --> zie de indelingsplannen hier onderaan onder DOWNLOADS
- gelegen in het centrum van Heers langs de drukke Steenweg met alle winkels, scholen en voorzieningen in de onmiddellijke nabijheid
- met een aparte bureelruimte of praktijkruimte met een aparte ingang
- voorzien van een zuidelijk georiënteerd terras van 100m² en nog een tuin met tuinhuis, rechtstreeks toegankelijk vanuit de Steenweg
- 6 slaapkamers
- zolder bereikbaar via 2 vaste trappen, dus hier ook nog uitbreidingsmogelijkheden
- CV mazout (aardgas ligt voor de deur in de straat)
- sommige ramen met dubbel beglazing
- P- en G-score C
- EPC 825 kWh/m² - label F --> zie het attest onderaan deze pagina onder DOWNLOADS. Dit pand is onderworpen aan de renovatieverplichting van de Vlaamse Overheid voor residentiële gebouwen (behoudens bij sloop binnen 5 jaar na de aankoop). Consulteer voor meer informatie de website van het Vlaams Energie- en Klimaatagentschap via https://vlaanderen.be/een-huis-of-appartement-kopen/renovatieverplichting-voor-residentiele-gebouwen
- Bestuursmaatregelen in het maatregelenregister: nee

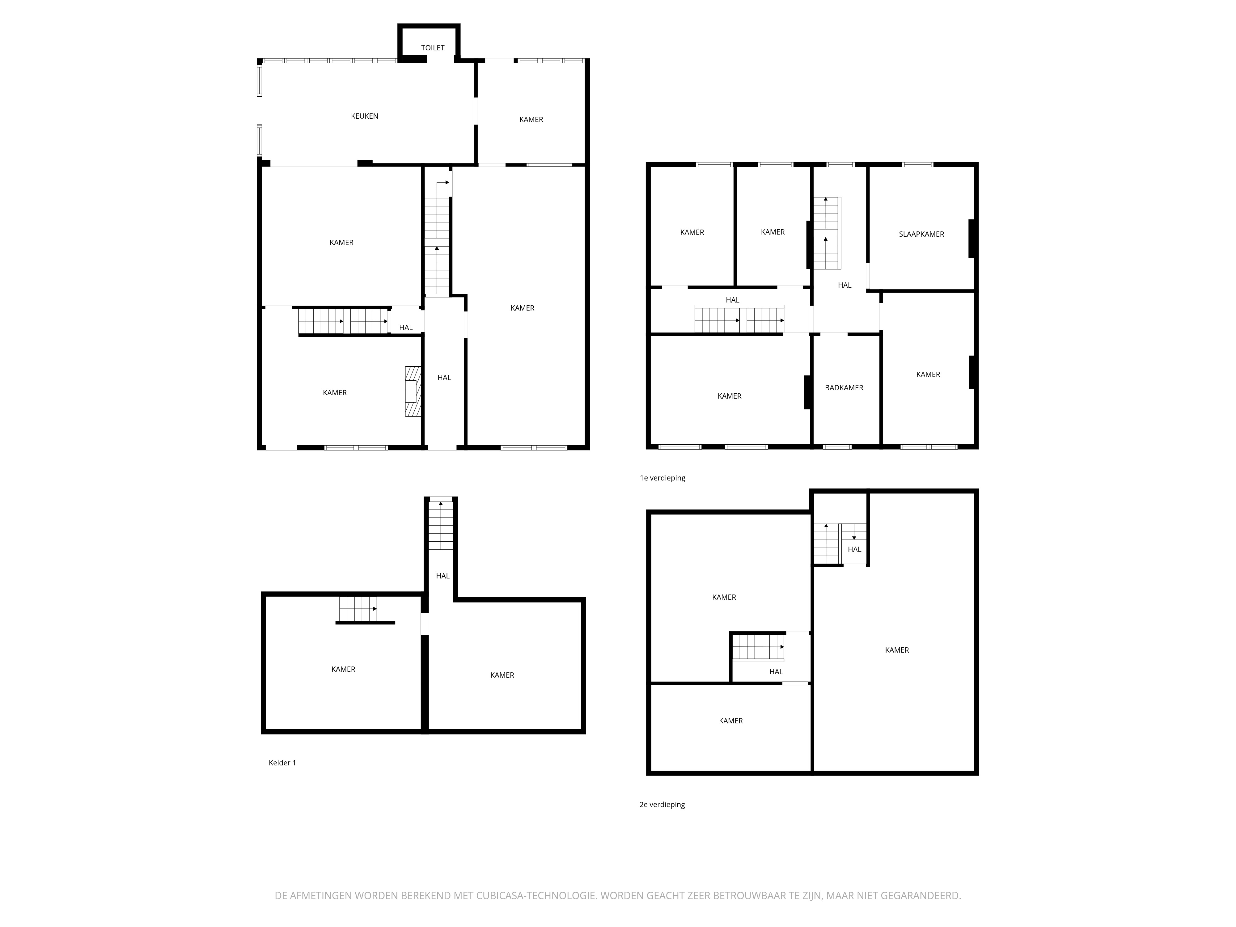
KELDER - plafondhoogte 1.70 meter:
- Kelder
(41m²): 9.60x4.30m, bereikbaar via 2 trappen. Hier staat ook de CV-ketel op mazout, de zichtbare mazouttank en de ontkalker. Betonvloer.

GELIJKVLOERS
:
- Inkomhal (6m²): 4.75x1.25m, met één van de 2 trappen naar de bovenverdieping. Laminaatvloer.
- Leefruimte 1 (36m²): 9.00x4.00m, voorzien van een schouw en laminaatvloer. Raam met dubbel glas aan de straatzijde.
- Wasplaats (10m²): 3.50x3.00m met een zitbad/jacuzzi, aansluiting wasmachine en droogkast, een uitgietbak en nog een buitendeur naar de tuin/terras. Laminaatvloer.
- Keuken + eetplaats (21m²): 7.00x3.00m, geïnstalleerd met lades en onder- en bovenkasten en uitgerust met een warmeluchtoven, dampkap en dubbele spoelbak. Mooi zicht op en toegang tot het terras en de tuin. Tegelvloer.
- Apart toilet (1.50m²): 1.70x.085m met een raampje.
- Apart bureau (40m²): 9.00x4.30m met in het midden de tweede trap naar de bovenverdieping. Voorzien van een schouw en nog een aparte voordeur aan de straatzijde. Linoleumvloer.

VERDIEPING +01 - bereikbaar via twee vaste trappen - houten tussenvloer:
- Nachthal
(17.50m²): 5.00x1.40m + 5.00x2.00m, met twee vaste trappen naar de zolderverdiepingen.
- Badkamer (6m²): 3.35x1.90m, uitgerust met een ligbad, bidet en dubbele lavabo. Voorzien van een raam met dubbel glas en linoleumvloer.
- Slaapkamer 1 (18m²): 4.90x3.75m, voorzien van een radiator en vast tapijt.
- Slaapkamer 2 (14m²): 4.75x2.90m, voorzien van een radiator en raam met dubbel glas. Vast tapijt.
- Slaapkamer 3 (13m²): 3.75x3.40m, voorzien van een radiator en raam met dubbel glas en vliegenraam. Vast tapijt.
- Slaapkamer 4 (9m²): 3.80x2.35m, voorzien van een radiator en raam met dubbel glas en vliegenraam. Vast tapijt.
- Slaapkamer 5 (9m²): 3.80x2.40m, voorzien van een radiator en raam met dubbel glas en vliegenraam. Vast tapijt.

VERDIEPING +02 - bereikbaar via twee vaste trappen - houten tussenvloer:
- Slaapkamer 6
(25m²): 5.35x4.65m voorzien van een radiator en veluxraam. Linoleumvloer.
- Zolder 1 (45m²): 9.00x5.00m, onafgewerkte zolder, voorzien van een veluxraam.
- Zolder 2 (14m²): 5.00x2.75m. Onafgewerkte zoldertje.

EXTERIEUR:

- Doorgang vanuit de Steenweg: rechtstreekse toegang vanuit de Steenweg naar het terras/de tuin, 1 meter breed aan de straatzijde. Beklinkerd.
- Terras (100m²): 10.00x10.00m, beklinkerd.
- Tuin: zuidelijk georiënteerde tuin, aangelegd met gras.
- Tuinberging (10m²): 4.00x2.50m, bereikbaar via het terras en voorzien van elektriciteit en een uitgietbak met manuele pomp aangesloten op een regenwaterput. Tegelvloer.
- Tuinhuis (28m²): 8.00x3.50m, gelegen achteraan het perceel en voorzien van elektriciteit en klinkervloer.

N3 vastgoed


Luikersteenweg 395, 3800 Sint-Truiden

T: +32 11 75 57 30


Contacteer ons voor meer info
  • Delen mag altijd:
  • Print

Meer in detail

Contacteer ons

Wenst u meer informatie over deze eigendom?

U moet een aanspreking selecteren.
U moet uw voornaam invullen.
U moet uw naam invullen.
U moet uw e-mailadres invullen.
U moet uw telefoon invullen.
U moet een vraag invullen.
U moet akkoord gaan met onze algemene voorwaarden.